Выгодное предложение
ДМЖ
єОселя 3%
єОселя 7%
єВідновлення
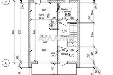
Дом по адресу ул. Мирная (площадь 100 м²)Код объекта:392085
Чтобы сменить валюту кликните по кнопке
69 000 $
Добавить в избранное
Поделиться
Ближайшая инфраструктура
parking
169 m
Школа
641 m















