Выгодное предложение
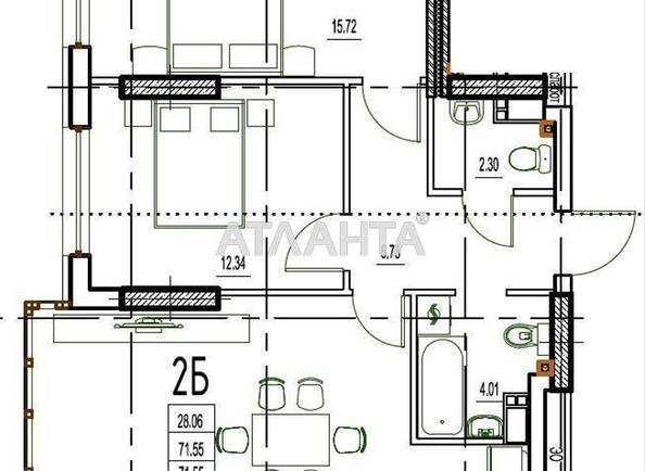
2-rooms apartment apartment by the address st. Fontanskaya dor Perekopskoy Divizii (area 77 m²)copyIcon:88521
changeCurrencyLabel
73 000 $
addToFavourite
shareInSocials
nearestInfr
university
321 m
post_office
343 m
supermarket
436 m
atm
455 m
school
706 m
hospital
907 m





