2-комнатная квартира по адресу ул. Яслинская (площадь 70,6 м²)copyIcon:400892
changeCurrencyLabel
113 000 $
addToFavourite
shareInSocials
blogTitle
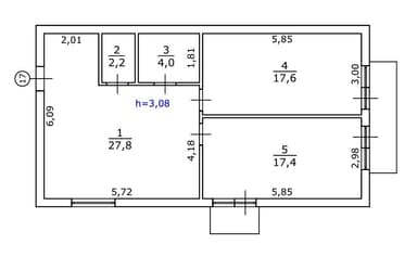
70 кв.м. свободы под ЄОселя! Семейная квартира с двумя санузлами (Яслинская, 3) Ищете пространство, где у каждого будет своя территория? Квартира №17 в клубном доме - идеальная геометрия для жизни большой семьи. Дом сдан, документы готовы. Подходит под "ЄОселя" (3%, 7%) и госпрограммы. Почему эта квартира особенная? Большинство застройщиков на такой площади пытаются "нарезать" три узкие комнатки. Здесь - 5 ФАКТОВ О ВАШЕМ КОМФОРТЕ: ? Королевский масштаб. Кухня-гостиная - 27,8 кв.м. Это полноценное пространство для приема гостей, где поместится большой диван, обеденный стол на 6-8 человек и останется место для танцев. Высота потолков - 3,08 м. Воздух, свет и ощущение свободы. ? Два санузла - конец утренним очередям. Планировкой предусмотрено два "мокрых" узла (4,0 кв.м и 2,2 кв.м). Вы можете сделать отдельный гостевой туалет и большую ванную комнату для хозяев. Или выделить прачечную в отдельную зону. ? Гарантия тепла (Энергонезависимость). Индивидуальный газовый котел и газовая плита. Когда у других электрические плиты не работают без света, у вас - горячий ужин и тепло. ? Безопасность и парковка. Лифт спускается прямо в подземный паркинг. Во время тревоги вы спускаетесь в укрытие в тапочках, не выходя на улицу. Закрытая территория, всего 22 квартиры - все свои. ? Спальни, в которых действительно отдыхаешь. Две равноценные спальни: 17,6 кв.м и 17,4 кв.м. Здесь не нужно думать, как втиснуть кровать. Здесь поместится все: рабочее место, гардеробная шкафа и большая кровать king-size. Технические детали Квартиры №17: Общая площадь: 70,6 кв.м. Балкон: Есть выход на балкон, который объединяет пространство, добавляя еще больше света. Состояние: Под чистовую отделку. Стены ровные, геометрия правильная - можно сразу приводить дизайнеров. Финансы и документы: Цена: $112 960 (инвестиция, которая оправдывается). Право собственности на руках. Никаких рисков "недостройки". Локация: Олександрівська Слобідка, Солом'янский район. Тихий центр рядом с Протасовым Яром. ? Звоните сегодня! Квартиры такого метража с газом и готовыми документами разбирают первыми. Посмотрим, замерим и обсудим условия сделки.















