Выгодное предложение
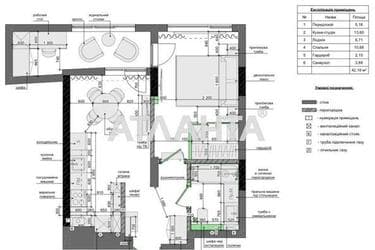
1-комнатная квартира по адресу Княгини Ольги ул. (площадь 42,2 м²)Код объекта:385930
Чтобы сменить валюту кликните по кнопке
105 000 $
Добавить в избранное
Поделиться
Ближайшая инфраструктура
Университет
182 m
Продукты
225 m
Банкомат
261 m
Школа
387 m
Школа
538 m
Больница
587 m





























