Многокомнатная квартира по адресу Деволановский сп. (площадь 600 м²)copyIcon:460128
changeCurrencyLabel
1 500 000 $
addToFavourite
shareInSocials
blogTitle
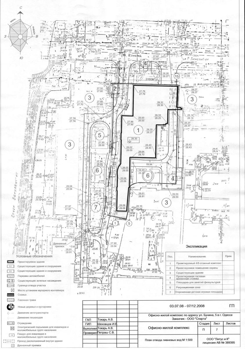
Предлагается к покупке интересный проект в самом центре города. Адрес: Бунина, 5-7 Угол Канатной. На расстоянии 300-400 м от участка расположен парк им. Т.Шевченко. Два малоэтажных дома старой постройки (на 20 квартир), которые находятся в аварийном состоянии и идут исключительно под снос. Квартиры в этих домах выкуплены, есть право собственности на каждую. Жильцы расселены. Площадь прогнозируемого участка новой застройки: 25,4 сотки. Есть готовый и утверждённый проект на строительство 4-8 этажного жилого дома со встроенными торгово-офисными помещениями и подземным паркингом. Что мы продаём? • Право собственности на все жилые квартиры в двух домах • Возможность строительства на участке • Проектную документацию. За дополнительной информацией - звоните.























