Вигідна пропозиція
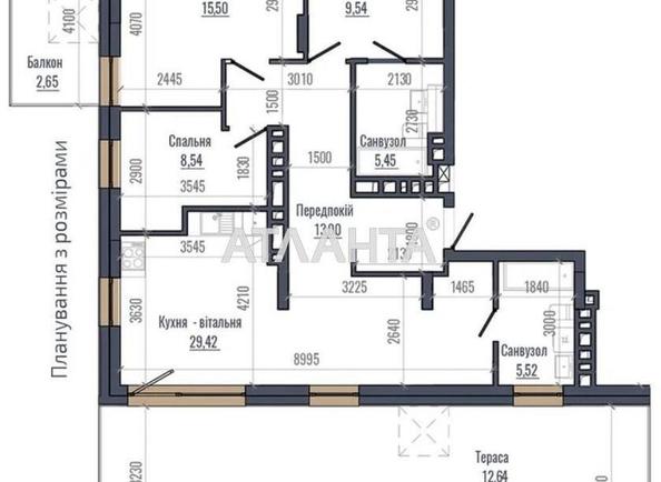
3-кімнатна квартира за адресою вул. Навроцького (площа 102,3 м²)Код об'єкта:391951
Щоб змінити валюту клікніть по кнопці
138 000 $
Додати в обране
Поділитись
Інфрастуктура поруч
Банкомат
261 m
Продуктовий магазин
264 m
parking
286 m
Пошта
329 m
Лікарня
473 m
Школа
476 m

















