2-комнатная квартира по адресу Проектируемый 5-й пер. (площадь 107 м²)copyIcon:440141
changeCurrencyLabel
240 000 $
addToFavourite
shareInSocials
blogTitle
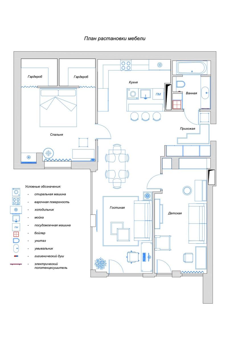
Трехкомнатная квартира с террасой ЖК Простір на Недєліна, район 6 станции фонтана. Общая площадь 107 кв. м. 7 этаж 7-ми этажного дома. Квартира продается с парковочным местом 12,5 кв. м. и кладовой 4,8 кв. м. Распланирована на прихожую, 2 спальни по 17 кв. м, просторную кухню-гостиную 41,4 кв. м, 2 гардеробные, террасу 28,2 кв. м (выход из кухни и спальни), санузел. Квартира с прекрасным видом на закат. Ремонт выполнен на 80% из качественных дорогих материалов: стены под покраску, проведена вся электрика, теплый пол, итальянская плитка, кухня с островом, потолки из гипсокартона, на террасу проведена вода, подготовлено место для бесперебойного электроснабжения. Дизайн-проект в подарок. Дом класса комфорт - закрытая, зеленая территория, охраняемая, видеонаблюдение. Детская площадка, кафе, супермаркет, школа, салоны красоты и т. д. Гостевая парковка. Есть дизельный генератор. № 213-254-493.























