discount
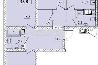
3-комнатная квартира по адресу ул. Прохоровская (площадь 97,3 м²)copyIcon:382708
shelterAvailability
changeCurrencyLabel
88 543 $
addToFavourite
shareInSocials
nearestInfr
supermarket
63 m
atm
74 m
school
198 m
hospital
400 m
post_office
403 m
university
584 m
blogTitle
ЖК Прохоровский квартал. Один из лучших комплексов на Молдаванке от надежного застройщика.
Секция на этапе строительства. Монолитный каркас полностью построен , ведутся работы по кладке стен
и облицовки фасада керамическим кирпичом. Сдача дома планируется в 4 кв. 2026г.
Выбор этажа данной планировки еще есть.
Квартира двухсторонняя, по сторонам света восток запад. Внутренняя, теплая, светлая.
Состояние от строителей. Посмотреть квартиру можно на этапе строительства.
Звоните согласуем просмотр.
Секция на этапе строительства. Монолитный каркас полностью построен , ведутся работы по кладке стен
и облицовки фасада керамическим кирпичом. Сдача дома планируется в 4 кв. 2026г.
Выбор этажа данной планировки еще есть.
Квартира двухсторонняя, по сторонам света восток запад. Внутренняя, теплая, светлая.
Состояние от строителей. Посмотреть квартиру можно на этапе строительства.
Звоните согласуем просмотр.















