Выгодное предложение
Комерційна нерухомість за адресою вул. Ульянова Дмитра (площа 1158,8 м²)Код объекта:396002
Чтобы сменить валюту кликните по кнопке
230 000 $
Добавить в избранное
Поделиться
Описание
Пропонується до продажу діючий комерційний комплекс, який раніше використовувався як АТП, розташований у гарній локації — поблизу інтенсивного транспортного потоку Київською трасою, всього 10 км Київською трасою від Конюшинного мосту.
Швидкий виїзд на магістраль державного значення забезпечує зручну логістику та постійний комерційний попит.
Ключові переваги:
- Приватна власність на земельну ділянку та усі будівлі
- Загальна площа території – 1,05 га (огороджена, тверде покриття)
- Загальна площа капітальних будівель – 1158,8 кв.м.
- Повний пакет комунікацій (380 В, центральний водогін, вигрібна яма)
- асфальтовані під'їзні колії
- Робочий стан будівель – можливість негайного запуску діяльності
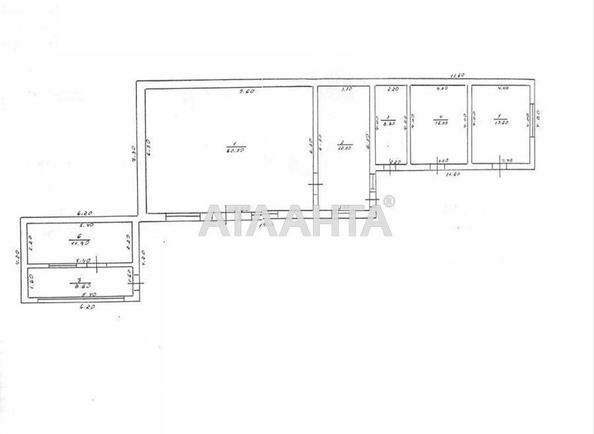
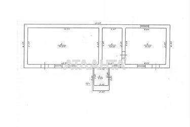
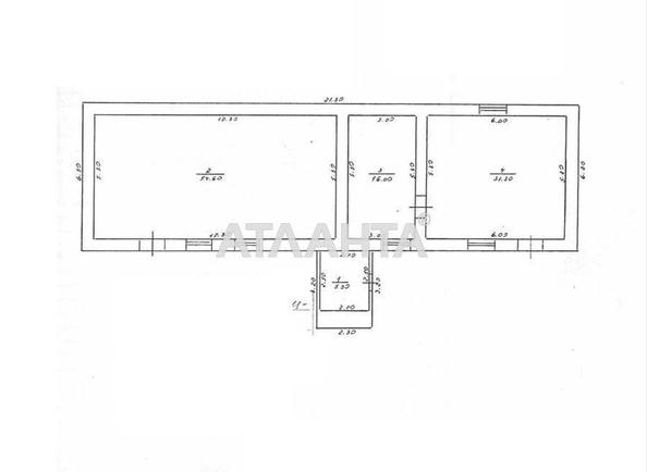
Склад комплексу:
- 136,4 кв.м – будівля гаража з боксами
- 145,4 кв.м - складське приміщення
- 770,8 кв.м – гараж на 80 автомобілів
- 106,2 кв.м - офісна частина з підсобними приміщеннями
Об'єкт ідеально підходить для:
- автотранспортного підприємства (АТП)
- СТО чи сервісного центру вантажного транспорту
- Логістичної бази, розподільчого центру
- виробничо-складського комплексу
- орендного бізнесу (розподіл на окремі блоки та здавання в оренду)
Велика площа території дозволяє додатково розмістити відкриті складські зони, стоянку техніки або розширити забудову.
Телефонуйте для організації перегляду
Швидкий виїзд на магістраль державного значення забезпечує зручну логістику та постійний комерційний попит.
Ключові переваги:
- Приватна власність на земельну ділянку та усі будівлі
- Загальна площа території – 1,05 га (огороджена, тверде покриття)
- Загальна площа капітальних будівель – 1158,8 кв.м.
- Повний пакет комунікацій (380 В, центральний водогін, вигрібна яма)
- асфальтовані під'їзні колії
- Робочий стан будівель – можливість негайного запуску діяльності
Склад комплексу:
- 136,4 кв.м – будівля гаража з боксами
- 145,4 кв.м - складське приміщення
- 770,8 кв.м – гараж на 80 автомобілів
- 106,2 кв.м - офісна частина з підсобними приміщеннями
Об'єкт ідеально підходить для:
- автотранспортного підприємства (АТП)
- СТО чи сервісного центру вантажного транспорту
- Логістичної бази, розподільчого центру
- виробничо-складського комплексу
- орендного бізнесу (розподіл на окремі блоки та здавання в оренду)
Велика площа території дозволяє додатково розмістити відкриті складські зони, стоянку техніки або розширити забудову.
Телефонуйте для організації перегляду











































