Дом по адресу ул. Лысенко (площадь 91 м²)copyIcon:437457
changeCurrencyLabel
85 000 $
addToFavourite
shareInSocials
blogTitle
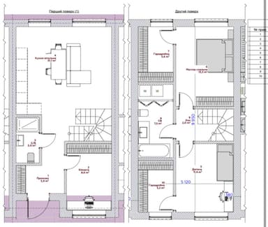
? Таунхаус в зеленой части Ирпеня ? г. Ирпень, ул. Лысенка ? Основные характеристики Общая площадь: 91 м² Жилая площадь: 33,3 м² Кухня-гостиная: 31,1 м² Мансарда: 40 м² (свободная планировка) Участок: 1,43 сотки Цена: 85 000 $ ? Локация Дома находятся в уютном зеленом районе Ирпеня среди дубов и сосен. Тихая улица, свежий воздух, при этом рядом вся необходимая инфраструктура: супермаркеты, аптеки, салоны красоты, остановка общественного транспорта, удобный выезд на Киев ? Планировка 1 этаж: кабинет, просторная кухня-гостиная, санузел 2 этаж: 2 спальни с гардеробными, санузел 3 этаж (мансарда): свободная планировка, площадь 40 м² - идеально под спальню, кабинет, игровую или зону отдыха ? Коммуникации и отопление Все коммуникации центральные Электричество: 7 кВт, 3 фазы, тариф день/ночь Отопление: индивидуальное газовое Установлен двухконтурный котел ? Технология строительства Стены: керамоблок Утепление: пенопласт Перекрытия: железобетонные (2 этаж и мансарда) Фасад: комбинированный - клинкер + декоративная штукатурка "баранец" ? Придомовая территория передний дворик задний дворик для зоны отдыха или барбекю ✨ Идеальный вариант для тех, кто ценит природу, тишину и комфорт городской жизни.

































