Вигідна пропозиція
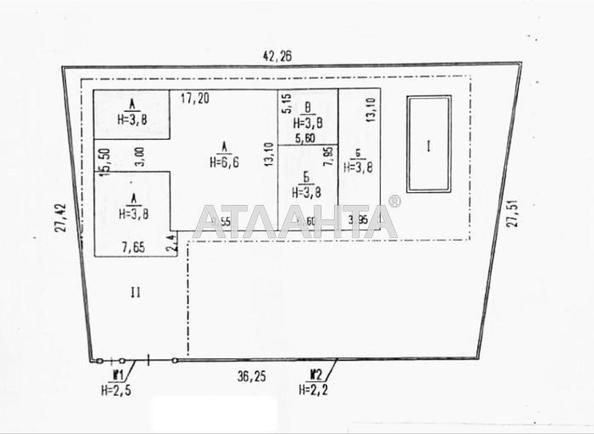
Будинок за адресою вул. Паркова (площа 350 м²)Код об'єкта:386141
Щоб змінити валюту клікніть по кнопці
890 000 $
Додати в обране
Поділитись
Інфрастуктура поруч
Банкомат
16 m
Пошта
37 m
Лікарня
78 m
Школа
99 m
Продуктовий магазин
223 m
Університет
243 m
Опис
У продажу сімейний сучасний будинок у закритому елітному комплексі Тартус, в пішій доступності від моря та пляжів.
Будинок розташований на ділянці 11 соток з ландшафтним дизайном та зонами відпочинку.
Є басейн+сауна.
У будинку-два поверхи, 5 окремих спалень, кабінет, три вбиральні, спортзал, ігрова кімната, техприміщення.
З кухні-вихід на криту терасу.
Гараж на два авто, плюс два відкриті паркомісця у дворі.
Цей будинок - це не просто квадратні метри, це стиль життя, практичність в експлуатації, естетика та дизайнерські тренди.
Телефонуйте!
Будинок розташований на ділянці 11 соток з ландшафтним дизайном та зонами відпочинку.
Є басейн+сауна.
У будинку-два поверхи, 5 окремих спалень, кабінет, три вбиральні, спортзал, ігрова кімната, техприміщення.
З кухні-вихід на криту терасу.
Гараж на два авто, плюс два відкриті паркомісця у дворі.
Цей будинок - це не просто квадратні метри, це стиль життя, практичність в експлуатації, естетика та дизайнерські тренди.
Телефонуйте!









































