єОселя 7%
єВідновлення
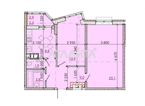
2-комнатная квартира по адресу ул. Прохоровская (площадь 66 м²)Код объекта:391039
Наличие укрытия
Чтобы сменить валюту кликните по кнопке
75 000 $
Добавить в избранное
Поделиться
Ближайшая инфраструктура
Школа
97 m
Банкомат
123 m
Школа
160 m
Продукты
211 m
parking
227 m
Университет
377 m
Больница
700 m

































